
Lentakkerstraat 17 Lotenhulle
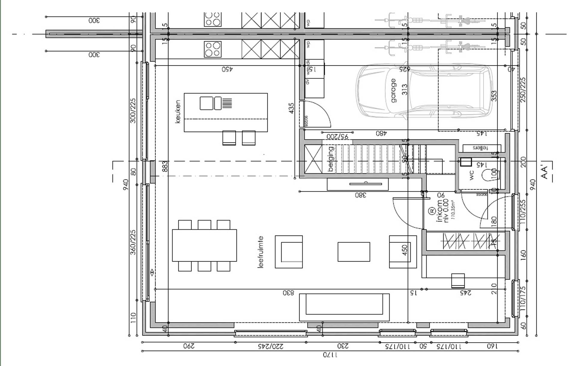
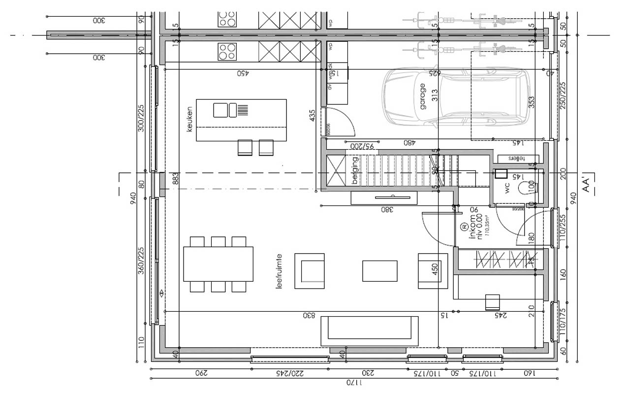
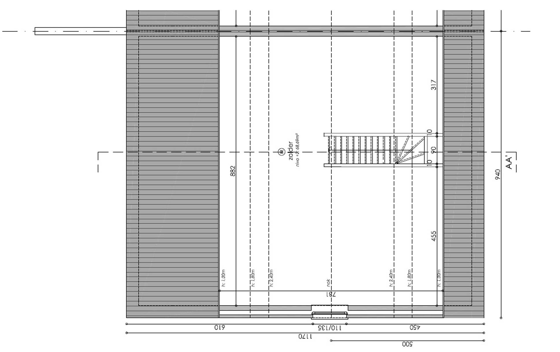
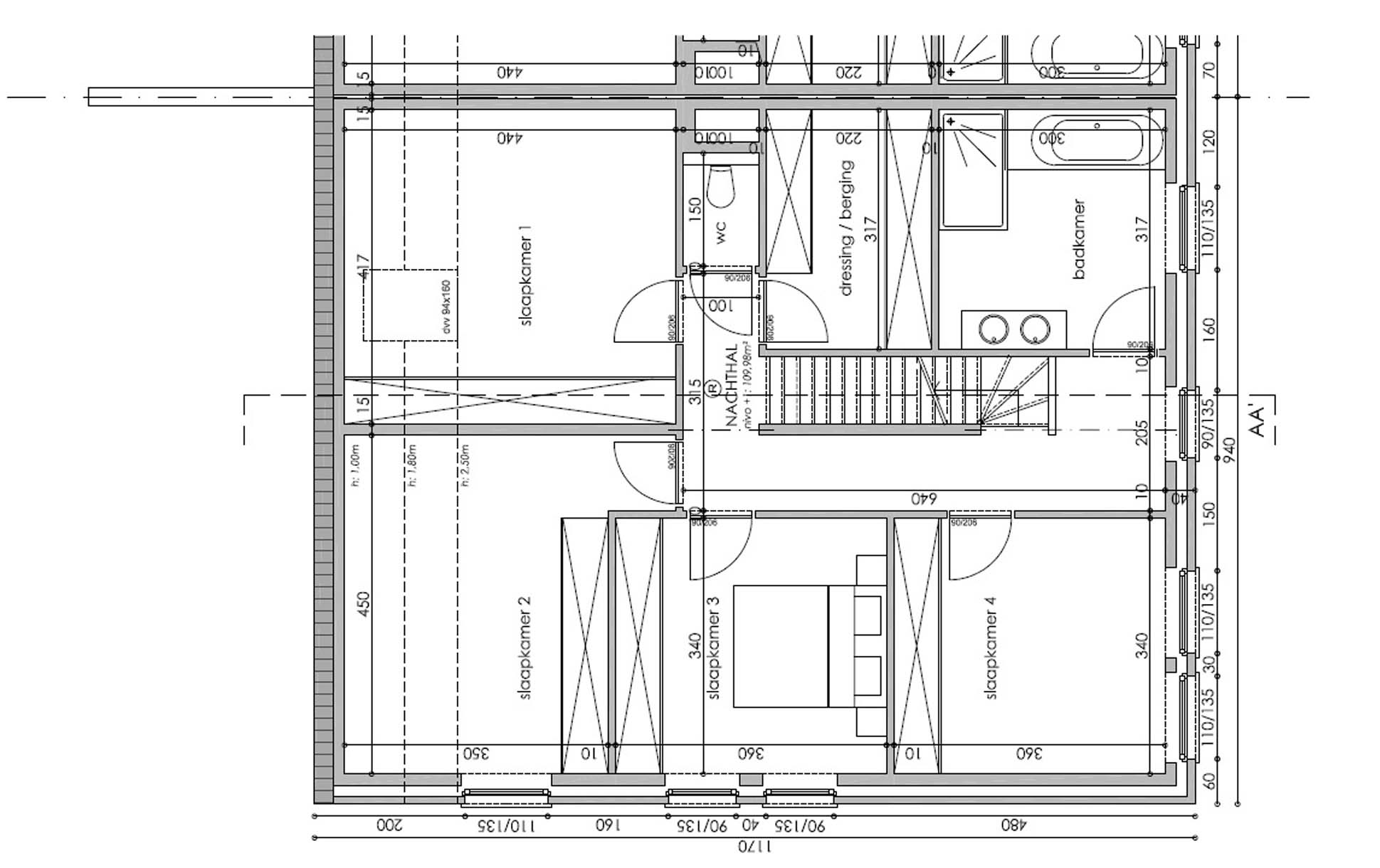
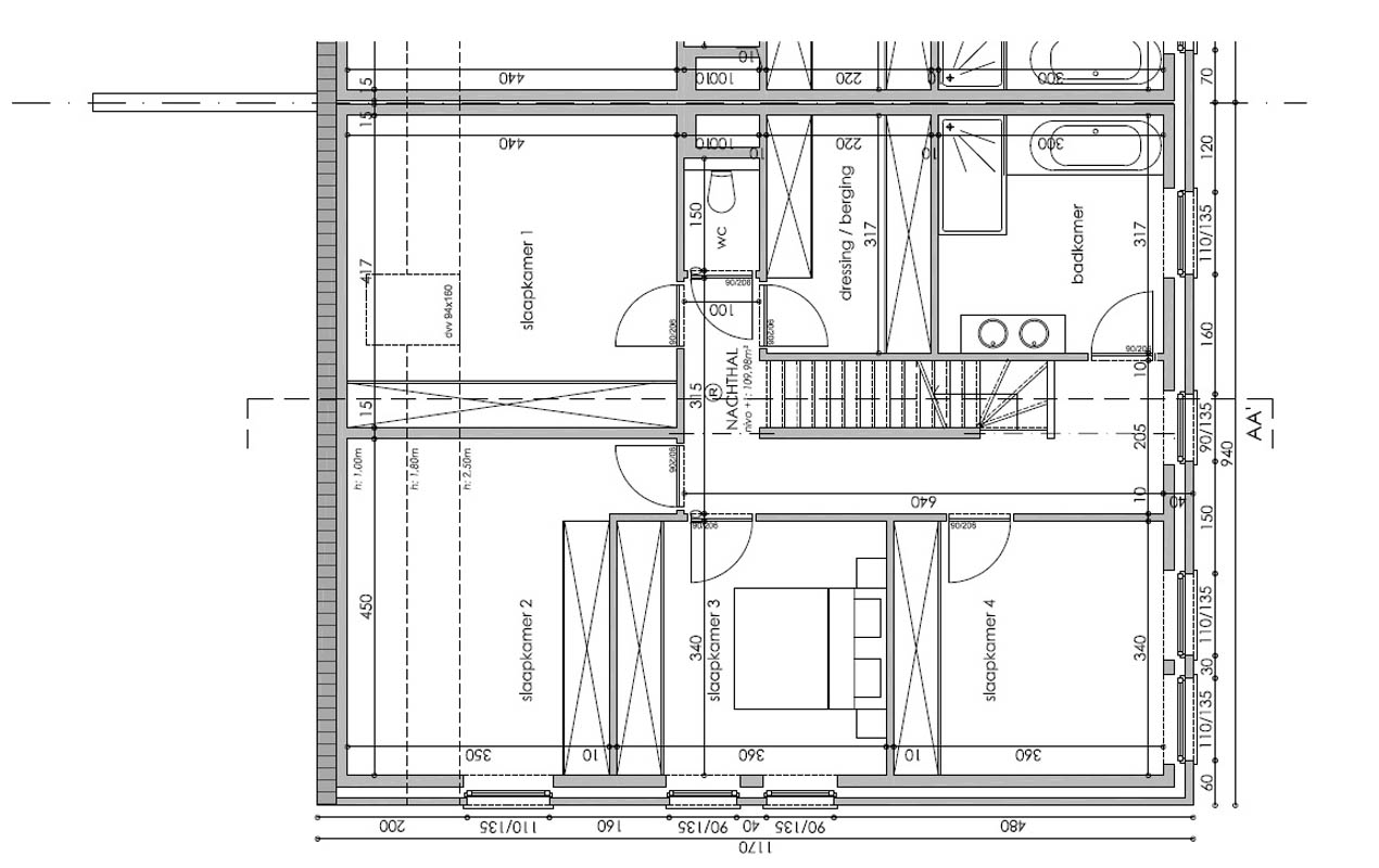
In het rustige, landelijke Lotenhulle wordt deze halfopen nieuwbouw (linkse woning op foto) aangeboden. De woning is afgewerkt tot op water- en winddicht niveau (volgens het lastenboek). Ze heeft een heel ruime bewoonbare oppervlakte en biedt 4 tot 5 slaapkamers met aparte dressing. Alsook heeft de woning een ruime, gezellige tuin.
Belangrijkste kenmerken:
Gelieve contact met ons op te nemen via 0472471838 voor meer informatie of een bezichtiging.